39
$738,000 Sale
Listed 10 hours ago
7 7305 Montecito Drive
· 2
· 2
· 1
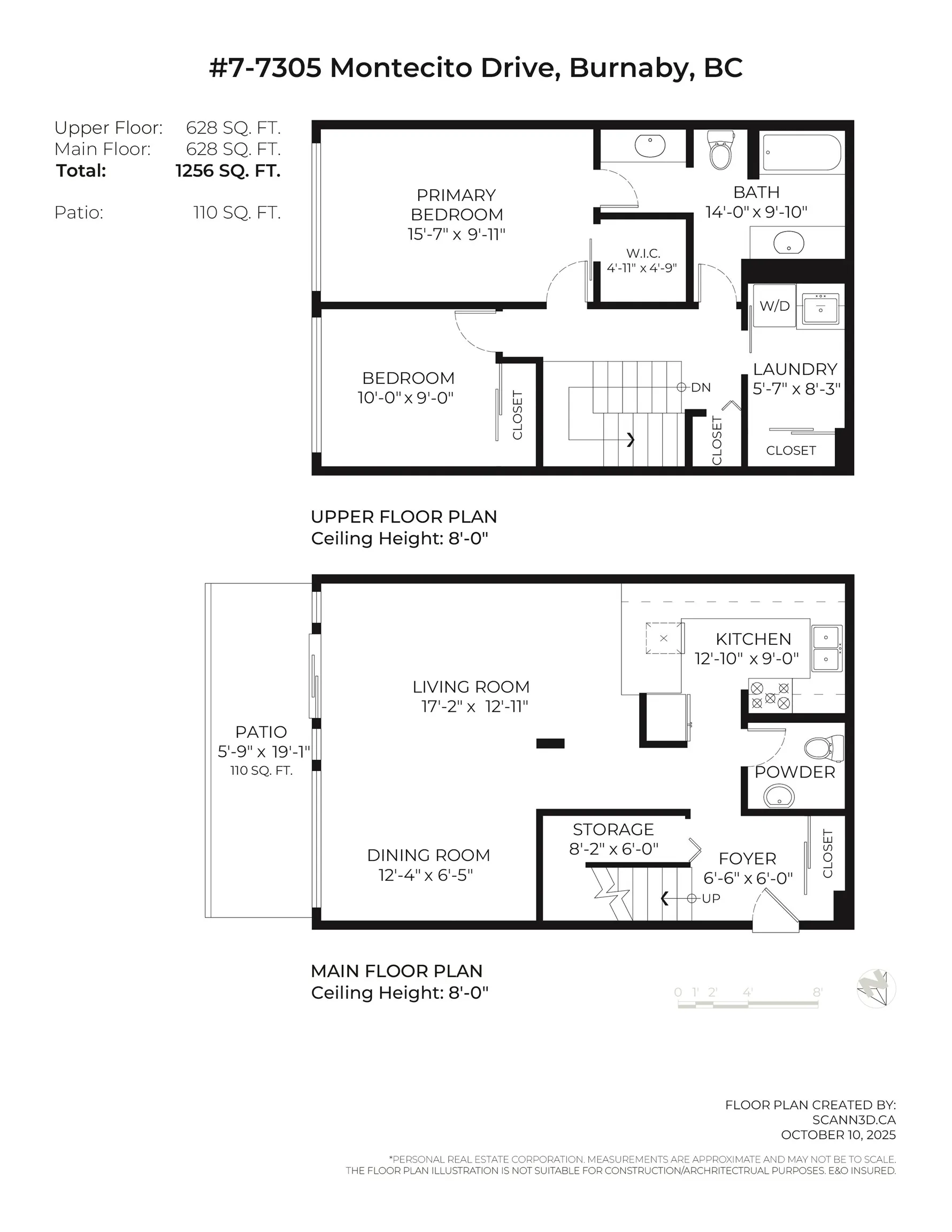
· 1256
Key Facts
Key facts for 7 7305 Montecito Drive
Property Type
Townhome
Parking
1 parking
MLS #
R3057714
Size
1256 sqft
Basement
None
Listed on
-
Lot size
-
Tax
$2,142.97 /yr
Days on Market
-
Year Built
1971
Maintenance Fee
$510.98 /mo
Description
Spacious 2 bedroom 2 bathroom corner townhome features 1,250 Sq. Ft of space on 2 levels and is situated in an incredible area backing Montecito Elementary, close to Burnaby Mountain Golf Course & Squint Lake Park. Considerable updates over the years include the bathrooms, laundry room, on-demand ho...t water, hickory engineered & oak floors including new baseboards, Daikin heat pump & A/C, & new ceramic flooring, countertops/appliances in the kitchen. New roof & skylight. 2 pets always welcomed. A very well run complex w/ an outdoor pool and kiddie pool. A remarkable residence w/ truly great value!
Similar Properties (No results)
Room Types
Living Room
-
Dimensions 12'11 x 17'2
221.74 sqft
Dining Room
-
Dimensions 6'5 x 12'4
79.14 sqft
Kitchen
-
Dimensions 9'0 x 12'10
115.5 sqft
Courtesy of: eXp Realty